Featured Properties

To view the featured individual properties we have for sale, simply search using the fields below.

Courtesy of Realty Focus.
Data was last updated 2025-06-25 at 20:18:11 GMT
$579,800

261 Meadowview Drive   Fort Saskatchewan, Alberta

MLS®: E4430679
URL:    
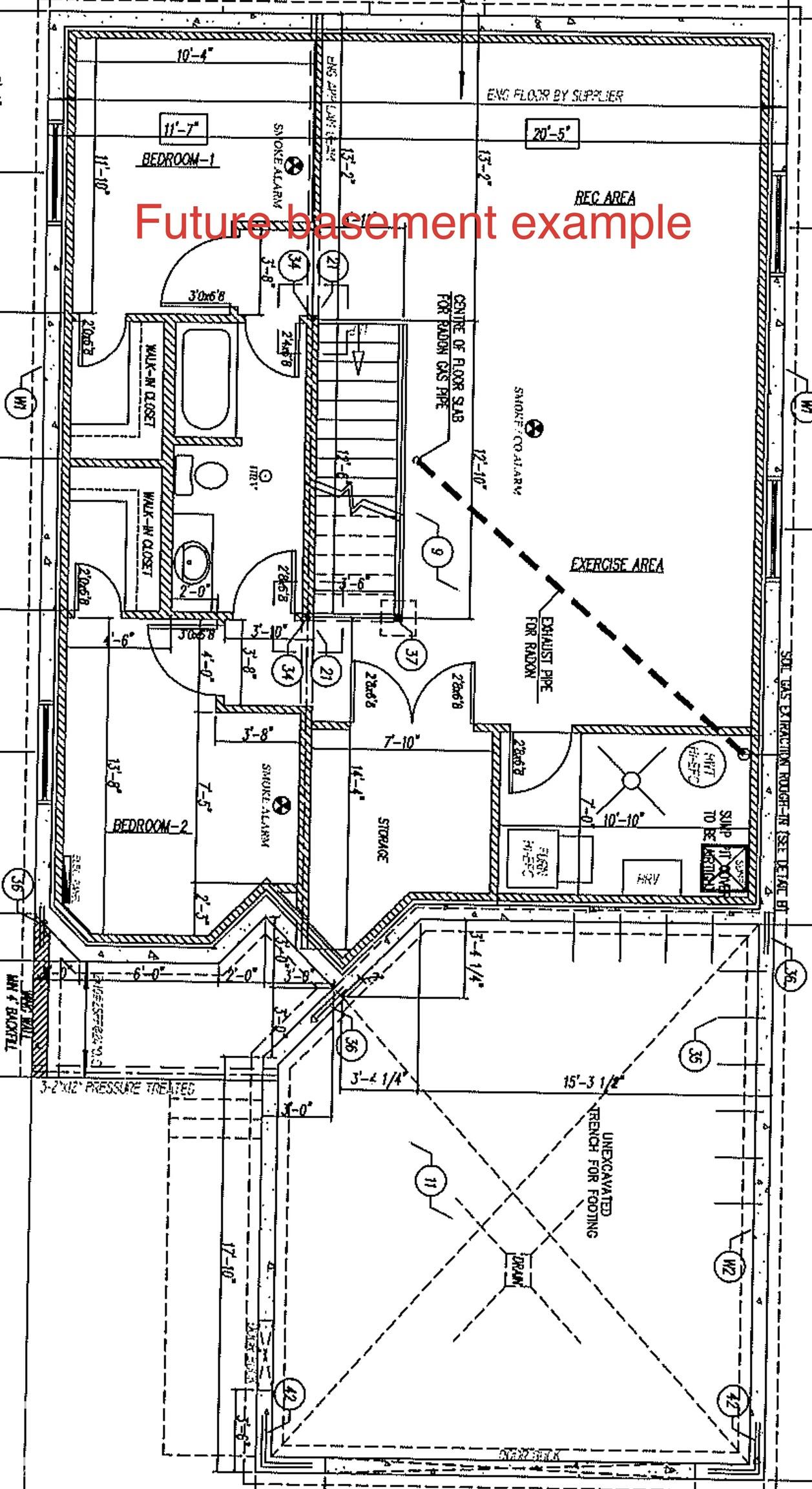
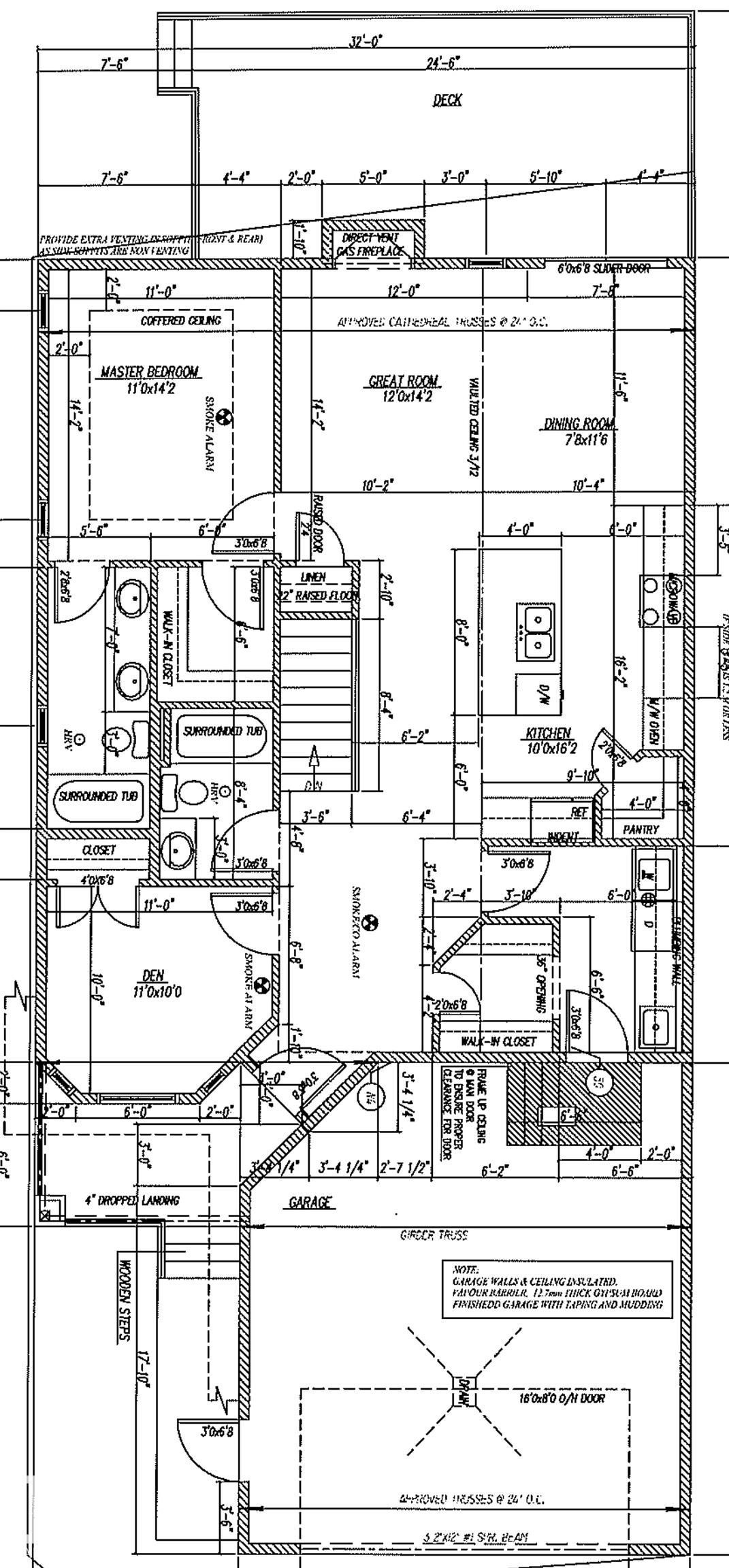
Your Dream Bungalow Under Construction! This stunning 1,284 sq. ft. modern home blends style, comfort, and functionality. The spacious layout boasts a vaulted front-to-back ceiling in the Great Room and a striking floor-to-ceiling stone gas fireplace. The chef-inspired kitchen features a functional island, corner pantry, and quartz countertops throughout. Enjoy the convenience of a huge main-floor laundry room. Flexible design offers two bedrooms or a bedroom plus den. The primary suite includes a walk-in closet and a 4-piece bath with a double shower and optional seat. Stylish vinyl plank flooring flows throughout. The oversized 22? x 23? double garage adds storage and parking space. Relax on the rear deck overlooking your sunny north-facing backyard. Show Home @ 558 Meadowview Dr. Ft Sask for Details
Your Dream Bungalow Under Construction! This stunning 1,284 sq. ft. modern home blends style, comfort, and functionality. The spacious layout boasts a vaulted front-to-back ceiling in the Great Room and a striking floor-to-ceiling stone gas fireplace. The chef-inspired kitchen features a functional island, corner pantry, and quartz countertops throughout. Enjoy the convenience of a huge main-floor laundry room. Flexible design offers two bedrooms or a bedroom plus den. The primary suite includes a walk-in closet and a 4-piece bath with a double shower and optional seat. Stylish vinyl plank flooring flows throughout. The oversized 22? x 23? double garage adds storage and parking space. Relax on the rear deck overlooking your sunny north-facing backyard. Show Home @ 558 Meadowview Dr. Ft Sask for Details

Listing Information

Prop. Type:
Detached Single Family
Property Style:
Bungalow
Status:
Active
City:
Fort Saskatchewan
MLS® Number:
E4430679
Bedrooms:
2
Neighbourhood:
South Fort
Area:
Edmonton
Province:
Alberta
Listing Price:
$579,800

General Information

Year Built:
2025
Total Square Feet:
1284ft2

Additional Information

Basement Dev:
Full, Unfinished
Parking:
Double Garage Attached

VIP-Only Information

Sign-Up or Log-in to view full listing details:
Sign-Up / Log In
This property is listed by Realty Focus and provided here courtesy of MONA LAHAIE. For more information or to schedule a viewing please contact MONA LAHAIE.
MONA LAHAIE
Remax Elite
Phone: 780-929-5555
Mobile Phone: 780-850-0800
Inquire Via Email
Data is deemed reliable but is not guaranteed accurate by the REALTORS® Association of Edmonton.